NEUE KÜCHE UND NEUES BAD FÜR 12 FAMILIEN
Die Mehrfamilienhaus-Überbauung wurde in den 70er-Jahren realisiert – so alt sind auch die Kücheneinrichtungen und die Sanitären Anlagen. Die Bauherrschaft hat sich entschlossen, mit einer Komplettsanierung die Liegenschaft an die Anforderungen des heutigen Mietwohnungsmarktes anzupassen.
Während dieser massiven Umbauarbeiten wohnten die Mieter weiterhin in ihren Wohnungen…
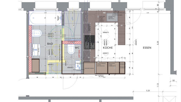
Sanierung Küchen/Bad:
Der Block aus Nasszellen und Küche wurde komplett neu gestaltet. Die Küche wurde gegen den Essplatz geöffnet und grosszügiger eingerichtet. Das Bad konnte mit einer Dusche ergänzt werden.
Einbau Wohnungen in Dachgeschoss:
Das Anheben des Dachstuhls erwies sich als zu aufwändig. Trotzdem entschloss sich die Bauherrschaft für den Einbau von vier Kleinwohnungen in dieses bestehende Dachgeschoss. Mit einer originellen Grundrissplanung und dem Einbau von grossflächigen Flachdach-Lukarnen konnten trotzdem äusserst attraktive Wohnungen geschaffen werden. Diese waren bei Fertigstellung bereits alle vermietet.
PLANUNG
2014
AUSFÜHRUNG
2015
KOMPETENZEN
Innenarchitektur
ABGESCHLOSSENES
PROJEKT
PLÄNE
VORHER
































